D18 Art & Tech Show 16-Mar-2023 Setup

From
Jump to: navigation, search

Plan

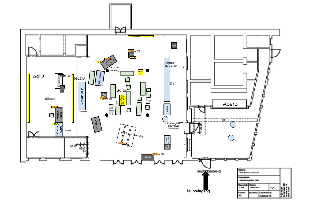
Raum Layout

20230316 D18 Art Tech Show Clubraum Plan.png

Shot Scene

20230316 D18 Art Tech Show ShotScene.jpeg

Wire Diagram

20230316 D18 Art Tech Show WireDiagram.png

Graph Source-Code: 20230316_D18_Art_Tech_Show_WireDiagram.dot

graph arttech3 {

 fontname="Helvetica" fontsize=8
 rankdir="LR"
 graph [fontname="Helvetica" fontsize=24 labelloc=t label="D18 Art & Tech Show 16-Mar-2023 - Draft\n\n" splines=splines overlap=false]
 ratio = auto
 subgraph cluster01 {
   label = "Sources" fontsize=18;
   Pc01 [shape=Mrecord, label="{PC 1\nMario iMac|<HdmiOut>HDMI Out}"];
   Pc02 [shape=Mrecord, label="{PC 2\nGuest Laptop|<HdmiOut>HDMI Out}"];
   Pc03 [shape=Mrecord, label="{PC 3\nEisentanz|<HdmiOut>HDMI Out}"];
   Pc04 [shape=Mrecord, label="{PC 4\nVadim|<HdmiOut>HDMI Out}"];
   Pc05 [shape=Mrecord, label="{PC 5\nKaspar|<HdmiOut>HDMI Out}"];
   Cam01 [shape=Mrecord, label="{Cam 1\nPanasonic|<HdmiOut>HDMI Out}"];
   H2S01 [shape=Mrecord, label="{{<HdmiIn>HDMI In}|{H2S01\nHDMI to SDI}|{<SdiOut>SDI Out}}"];
   Cam02 [shape=Mrecord, label="{Cam 2\nPanasonic|<HdmiOut>HDMI Out}"];
   H2S02 [shape=Mrecord, label="{{<HdmiIn>HDMI In}|{H2S02\nHDMI to SDI}|{<SdiOut>SDI Out}}"];
   Cam03 [shape=Mrecord, label="{Cam 3\nPanasonic|{<HdmiOut>HDMI Out|<SdiOut>SDI Out}}"];
   AudioMix01 [shape=Mrecord, label="{AudioMix01|{<XlrOut1>XLR Out Ch1|<XlrOut2>XLR Out Ch2}}"];
   HbiS01 [shape=Mrecord, label="{{<HdmiIn>HDMI In|<HdmiOut>HDMI Out}|{HbiS01\nHDMI BiDir SDI}|{<SdiIn>SDI In|<SdiOut>SDI Out}}"];
 }
 subgraph cluster02 {
   label = "Video Desk" fontsize=18;
   DiBox01 [shape=Mrecord, label="{<XlrIn>XLR In|DiBox01|<XlrOut>XLR Out}"];
   DiBox02 [shape=Mrecord, label="{<XlrIn>XLR In|DiBox02|<XlrOut>XLR Out}"];
   BMDAM01 [shape=Mrecord, label="{{<Mic1>Mic 1| <Mic2>Mic 2|<HdmiIn1>HDMI In 1|<HdmiIn2>HDMI In 2|<HdmiIn3>HDMI In 3|<HdmiIn4>HDMI In 4}|{Blackmagic\nATEM Mini}|{<HdmiOut>HDMI Out|<USB>USB-C|<Net>Net}}"]; 
   BMDAMEI01 [shape=Mrecord, label="{{<Mic1>Mic 1| <Mic2>Mic 2|<HdmiIn1>HDMI In 1|<HdmiIn2>HDMI In 2|<HdmiIn3>HDMI In 3|<HdmiIn4>HDMI In 4|<HdmiIn5>HDMI In 5|<HdmiIn6>HDMI In 6|<HdmiIn7>HDMI In 7|<HdmiIn8>HDMI In 8}|Blackmagic\nATEM Mini\nExtr. Iso|{<HdmiOut1>HDMI Out 1|<HdmiOut2>HDMI Out 2|<USB1>USB-C 1|<USB2>USB-C 2|<Net>Net|<Headphone>Headphone}}"]; 
   H1x4S01 [shape=Mrecord, label="{{<HdmiIn>HDMI In}|H1x4S01\nHDMI\nSplitter\n1 to 4|{<HdmiOut1>HDMI Out 1|<HdmiOut2>HDMI Out 2|<HdmiOut3>HDMI Out 3|<HdmiOut4>HDMI Out 4}}"];
   S2H01 [shape=Mrecord, label="{{<SdiIn>SDI In}|{S2H01\nSDI to HDMI}|{<HdmiOut>HDMI Out}}"];
   S2H02 [shape=Mrecord, label="{{<SdiIn>SDI In}|{S2H02\nSDI to HDMI}|{<HdmiOut>HDMI Out}}"];
   HbiS02 [shape=Mrecord, label="{{<SdiIn>SDI In|<SdiOut>SDI Out}|{HbiS02\nHDMI BiDir SDI}|{<HdmiIn>HDMI In|<HdmiOut>HDMI Out}}"];
   HbiS03 [shape=Mrecord, label="{{<SdiIn>SDI In|<SdiOut>SDI Out}|{HbiS03\nHDMI BiDir SDI}|{<HdmiIn>HDMI In|<HdmiOut>HDMI Out}}"];
   Moni01 [shape=Mrecord, label="{<HdmiIn>HDMI In|Monitor 3}"];
   Ssd01 [shape=Mrecord, label="{<USB>USB-C|Ssd01\nSSD}"];
   MobilInt01 [shape=Mrecord, label="{<Net>Net|MobilInt01\n4G Mobile\nInternet}"];
   RasPi01 [shape=Mrecord, label="{{<Usb1>USB 1|<Usb2>USB 2|<Usb3>USB 3|<Usb4>USB 4}|RasPi01\nRaspberryPi 4\nCompanion|{<Net>Net|<HdmiOut1>HDMI Out 1|<HdmiOut2>HDMI Out 2|<UsbPwr>USB Power}}"];
   StrDeck01 [shape=Mrecord, label="{<Usb>USB|Elgato\nStreamDeck}"];
   NetSwitch01 [shape=Mrecord, label="{<Port1>Port1|<Port2>Port2|<Port3>Port3|<Port4>Port4|<Port5>Port5|<Port6>Port6|<Port7>Port7|<Port8>Port8}|NetSwitch01\nEthernet Switch 1"]
 }
 subgraph cluster03 {
   label = "Targets" fontsize=18;
   Beam01 [shape=Mrecord, label="{<HdmiIn>HDMI In|Beamer 1}"];
   Beam02 [shape=Mrecord, label="{<HdmiIn>HDMI In|Beamer 2}"];
   YouTube [shape=octagon, Label="YouTube\chkummer"]
 }
 #Connections
 Pc01:HdmiOut -- BMDAM01:HdmiIn1
 Pc02:HdmiOut -- BMDAM01:HdmiIn2
 Pc03:HdmiOut -- BMDAM01:HdmiIn3
 Pc04:HdmiOut -- BMDAM01:HdmiIn4
 Pc05:HdmiOut -- HbiS01:HdmiIn
 HbiS01:SdiOut -- HbiS03:SdiIn
 HbiS03:HdmiOut -- BMDAM01:HdmiIn4
 Cam01:HdmiOut -- H2S01:HdmiIn
 H2S01:SdiOut -- S2H01:SdiIn
 S2H01:HdmiOut -- BMDAMEI01:HdmiIn1
 Cam02:HdmiOut -- H2S02:HdmiIn
 H2S02:SdiOut -- S2H02:SdiIn
 S2H02:HdmiOut -- BMDAMEI01:HdmiIn2
 Cam03:SdiOut -- HbiS02:SdiIn
 HbiS02:HdmiOut -- BMDAMEI01:HdmiIn3 
 RasPi01:Net -- NetSwitch01:Port4
 RasPi01:Usb1 -- StrDeck01:Usb
 AudioMix01:XlrOut1 -- DiBox01:XlrIn
 AudioMix01:XlrOut2 -- DiBox02:XlrIn
 DiBox01:XlrOut -- BMDAMEI01:Mic1
 DiBox02:XlrOut -- BMDAMEI01:Mic1
 BMDAM01:HdmiOut -- H1x4S01:HdmiIn
 BMDAM01:Net -- NetSwitch01:Port1
 H1x4S01:HdmiOut1 -- Beam01:HdmiIn
 H1x4S01:HdmiOut2 -- Beam02:HdmiIn
 H1x4S01:HdmiOut4 -- BMDAMEI01:HdmiIn4
 BMDAMEI01:HdmiOut1 -- Moni01:HdmiIn
 BMDAMEI01:USB1 -- Ssd01:USB
 BMDAMEI01:Net -- NetSwitch01:Port2
 NetSwitch01:Port3 -- MobilInt01:Net
 MobilInt01 -- YouTube

}

Parts List

Device Area Description Owner
Pc01 Sources Mario's iMac Dock18
Pc02 Sources Guest Presenter's Laptop Guest
Pc03 Sources PC Eisentanz Eistanz
Pc04 Sources PC Vadim Vadim
Pc05 Sources PC Kaspar Kaspar
Cam01 Sources Panasonic Camcorder Dock18
Cam02 Sources Panasonic Camcorder Dock18
Cam03 Sources Panasonic Video Camera Dodi
HbiS01 Sources Blackmagic Micro Converter BiDirectional SDI/HDMI 3G Chkummer
H2S01 Sources Blackmagic Micro Converter HDMI to SDI 3G Chkummer
H2S02 Sources Blackmagic Micro Converter HDMI to SDI 3G Chkummer
AudioMix01 Sources Audio Mixer (incl. Mics and PA) Rote Fabrik
Beamer01 Targets Video Beamer (Presentation) Rote Fabrik
Beamer02 Targets Video Beamer (Stage) Rote Fabrik
DiBox01 Video Desk IMG Stageline FGA-202 DI Box Chkummer
H1x4S01 Video Desk Navceker HDMI Splitter 1x4 Chkummer
S2H01 Video Desk Blackmagic Micro Converter SDI to HDMI 3G Chkummer
S2H02 Video Desk Blackmagic Micro Converter SDI to HDMI 3G Chkummer
HbiS02 Video Desk Blackmagic Micro Converter BiDirectional SDI/HDMI 3G Chkummer
HbiS03 Video Desk Blackmagic Micro Converter BiDirectional SDI/HDMI 3G Chkummer
BMDAM01 Video Desk Blackmagic ATEM Mini Pro ISO Chkummer
BMDAMEI01 Video Desk Blackmagic ATEM Mini Extreme ISO Chkummer
Moni01 Video Desk Seetec K280-9HSD-CO Chkummer
Ssd01 Video Desk SSD Chkummer
RasPi01 Video Desk Raspberry Pi 4 running Bitfocus Companion Pi Chkummer
StrDeck01 Video Desk Elgato Stream Deck Chkummer
NetSwitch01 VideoDesk Netgear GS108v4 8 Port Ethernet Switch Chkummer
MobilInt01 Video Desk Netgear Nighthawk M1 4G LTE Mobile Router MR1100 Chkummer
- Video Desk Ubiquiti AmpliFi Instant Chkummer

Links